戸建南江戸一戸建
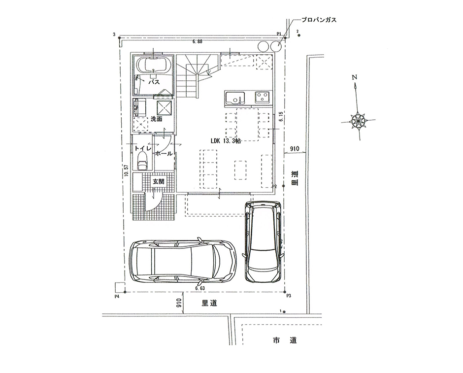
| 賃 料 | 89,000円 | 間取り | 3LDK(1F:13.3LDK 2F:6.4洋・4.8洋・4.5洋) |
|---|---|---|---|
| 共益費 | 実費 | 面 積 | 68.75m2 |
| 駐車料 | 1〜2台可 | 給排水 | 公共下水道 |
| その他 | ― | 交通 | 伊予鉄バス丸山バス停まで徒歩約1分 |
| 敷 金 | 2ヶ月(ペット飼育の場合は3ヶ月) | 学校区 | 新玉小学校・城西中学校 |
| 礼 金 | 1ヶ月 | 空号数 | ー |
| 種 別 | 賃貸一戸建 | 入居可能 | ― |
| 建築年 | 平成25年3月 | 形 態 | 貸主 |
| 備 考 | |||
松山市南江戸6丁目2-3-7
| 賃 料 | 89,000円 | 間取り | 3LDK(1F:13.3LDK 2F:6.4洋・4.8洋・4.5洋) |
|---|---|---|---|
| 共益費 | 実費 | 面 積 | 68.75m2 |
| 駐車料 | 1〜2台可 | 給排水 | 公共下水道 |
| その他 | ― | 交通 | 伊予鉄バス丸山バス停まで徒歩約1分 |
| 敷 金 | 2ヶ月(ペット飼育の場合は3ヶ月) | 学校区 | 新玉小学校・城西中学校 |
| 礼 金 | 1ヶ月 | 空号数 | ー |
| 種 別 | 賃貸一戸建 | 入居可能 | ― |
| 建築年 | 平成25年3月 | 形 態 | 貸主 |
| 備 考 | |||
松山市南江戸6丁目2-3-7